Cookies

We use essential cookies to make our site work. We'd also like to set analytics cookies that help us make improvements by measuring how you use the site. These will be set only if you accept.

For more detailed information about the cookies we use, see our cookies page.

Essential Cookies

Essential cookies enable core functionality such as security, network management, and accessibility. For example, the selections you make here about which cookies to accept are stored in a cookie.

You may disable these by changing your browser settings, but this may affect how the website functions.

Analytics Cookies

We'd like to set Google Analytics cookies to help us improve our website by collecting and reporting information on how you use it. The cookies collect information in a way that does not directly identify you.

Third Party Cookies

Third party cookies are ones planted by other websites while using this site. This may occur (for example) where a Twitter or Facebook feed is embedded with a page. Selecting to turn these off will hide such content.

Skip to main content

News

  • Save The Date

    Save The Date

    Staplehurst, Tonbridge, Kent
    Article by: Staplehurst Parish Council

    Friday 15th May 7.30pm Staplehurst Community Centre – North Hall Join us for the Staplehurst Merit Awards and Social Evening, held a...

    Staplehurst Parish Council   |  
    Posted: 4 Mar 26
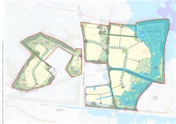
  • Proposed development of 300 homes just North of the Railway at Staplehurst

    Proposed development of 300 homes just North of the Railway at Staplehurst

    Staplehurst, Tonbridge, Kent
    Article by: Staplehurst Parish Council

    An outline planning application has been submitted to Maidstone Borough Council (MBC) for a proposed development of 300 new homes on land j...

    Staplehurst Parish Council   |  
    Posted: 3 Mar 26
  • Local Government Reorganisation (LGR)

    Local Government Reorganisation (LGR)

    Staplehurst, Tonbridge, Kent
    Article by: Staplehurst Parish Council

    Local Government Reorganisation (LGR) is set to be the biggest change to local councils in our generation and the UK Government wants to hea...

    Staplehurst Parish Council   |  
    Posted: 24 Feb 26
  • Village Clean-Up Saturday 14th March

    Village Clean-Up Saturday 14th March

    Staplehurst, Tonbridge, Kent
    Article by: Staplehurst Parish Council

    It’s the return of our Clean-Up morning. Please come along to the Youth Club in the High Street at 10am. Sign in, collect a litter-pi...

    Staplehurst Parish Council   |  
    Posted: 24 Feb 26
  • Merit Awards 2026

    Merit Awards 2026

    Staplehurst, Tonbridge, Kent
    Article by: Staplehurst Parish Council

    🌟 Staplehurst Parish Council Merit Awards – Nominations Now Open! 🌟 Staplehurst Parish Council is delighted to invite residents to ...

    Staplehurst Parish Council   |  
    Posted: 11 Feb 26
  • Public Consultation: Proposed Development off Marden Road, Staplehurst

    Public Consultation: Proposed Development off Marden Road, Staplehurst

    Staplehurst, Tonbridge, Kent
    Article by: Staplehurst Parish Council

    The Parish Council is sharing information about a proposal for a new development of 62 homes on land to the south of Marden Road, Staplehurs...

    Staplehurst Parish Council   |  
    Posted: 5 Feb 26
  • A Message from Katie Lam MP

    A Message from Katie Lam MP

    Staplehurst, Tonbridge, Kent
    Article by: Staplehurst Parish Council

    To all the Parish Councils in the Weald of Kent, It was inspiring to see people across our parishes and villages come together during our r...

    Staplehurst Parish Council   |  
    Posted: 4 Feb 26
  • 🎉 The Staplehurst Youth Club is making its return! 🎉

    🎉 The Staplehurst Youth Club is making its return! 🎉

    Staplehurst, Tonbridge, Kent
    Article by: Staplehurst Parish Council

    🎉 Staplehurst Youth Club is Back – Now with Two Sessions! 📍 High Street, TN12 0BJ 🗓 Every Monday Due to popular demand, we&rsquo...

    Staplehurst Parish Council   |  
    Posted: 7 Jan 26